【幸福金芒果】昆明華夏四季:現代簡約風暖宅,越住越喜歡!
項目地址:昆明華夏四季
項目風格:現代簡約
設計單位:幸福金芒果
在簡約潔凈的空間下,保留舒適的生活氛圍,實名夸贊一下這套來自來自昆明華夏四季的現代簡約風。純凈、明朗、輕松,讓人越住越喜歡!
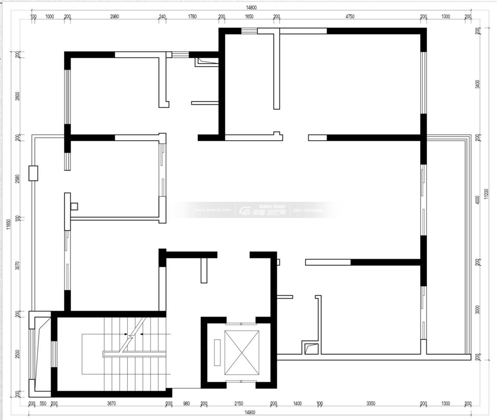
原始戶型圖

平面布置圖

分析:
1、原始戶型方正、采光充足、超大陽臺、三衛設計,但臥室空間與衛生間面積偏小,需要拆除部分墻體改建;
2、打通墻體后,廚房、餐廳、客廳三個空間一體化布局,更顯空間寬敞通透;
3、擴大兒童房與主臥的衛生間面積,空間主人得到更佳的居住體驗。
客廳

白色為空間定下主基調,客餐廳一體化的設計,真的很顯空間大氣通透,怪不得那么多人喜歡這樣的設計,既方便實用又美觀精致!

硬裝設計上將吊頂設計為方形和圓形,仔細觀察不難發現,它們正好對應下空的長方形地毯與圓形餐桌,上下巧妙呼應充滿設計感。線性燈搭配上吊頂,打造出懸浮效果,延伸空間視覺,不壓層高,營造出高級又溫馨的氛圍感。
餐廳

餐邊柜與電視柜是一體式的,如此設計,不僅滿足收納、展示需求,也節約了空間面積。時間煮酒,歲月飄香,熱衷藏酒的業主,最喜歡這里,一邊品嘗著紅酒,一邊與好友閑聊說笑......在這里享受片刻的漫時光!
廚房


廚房的色彩搭配不宜太過鮮艷,選用低飽和度的灰色系,看上去會更清爽柔和,減輕廚房油煙感!
書房

書房采光良好,是學習與閱讀的最佳空間。同時選用柔和的色彩進行搭配,更利于主人靜下心來閱讀或是專注辦公,提高工作效率。
主臥

一抹橘紅色為空間注入暖意與生機,打破空間的清冷感。整個空間造型沒有太多復雜的設計,溫馨舒服就是最理想的狀態!
兒童房

也許每個男孩都曾有過自己的航空夢,為他打造一個航天主題的兒童房,去看看奇妙的世界,探索神秘的外太空吧!
以上就是本期華夏四季現代簡約風的設計案例分享了,這樣愜意放松的家,有沒有溫暖和治愈到你呢?幸福金芒果下期與您不見不散。


