實景案例賞析丨好的設計,是將心頭的白月光落地到眼前的煙火人生

所謂好的設計,不是鏡花水月,看得到摸不著,而是可以真正落地呈現出來的。
擁有一個比樣板間還美的家是一種什么樣的體驗?這個問題,本期屋主一家擁有絕對的發言權。裝修過程中,從看效果圖到交流施工到最終入住,設計師與業主都能迅速get到對方的點,超高的契合度打造高顏值的品質之家。
裝修樓盤:世紀城沁春苑
裝修設計:金芒果裝飾
設計風格:現代風格
住宅面積:200m²

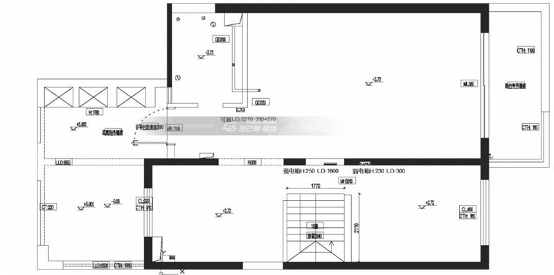
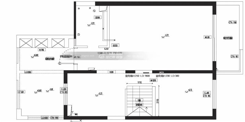
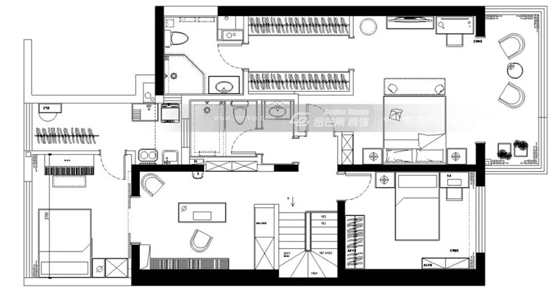
▲ 戶型分析
— The huose type
本套案例是一套復式的住宅,因為一家人居住既有老人也有小孩,所以老人房和兒童房都要有,衛生間也是設計了三個,這樣可以樓上樓下兼顧。

▲一樓改造前

▲一樓改造后
這個戶型采光比較好,既有室內休閑陽臺,也有室外花園。
客廳區域過大,為避免空間浪費,將衛生間墻體后移,客廳進一步擴大,設計了餐廳和餐邊柜,做到空間合理利用,也讓整體空間看起來更顯大了。廚房和樓梯間隔做一個吧臺,既實用又做到了功能區隔。

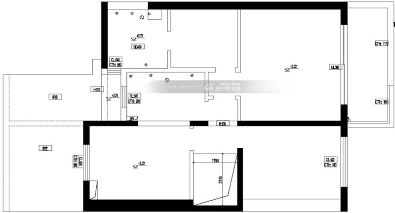
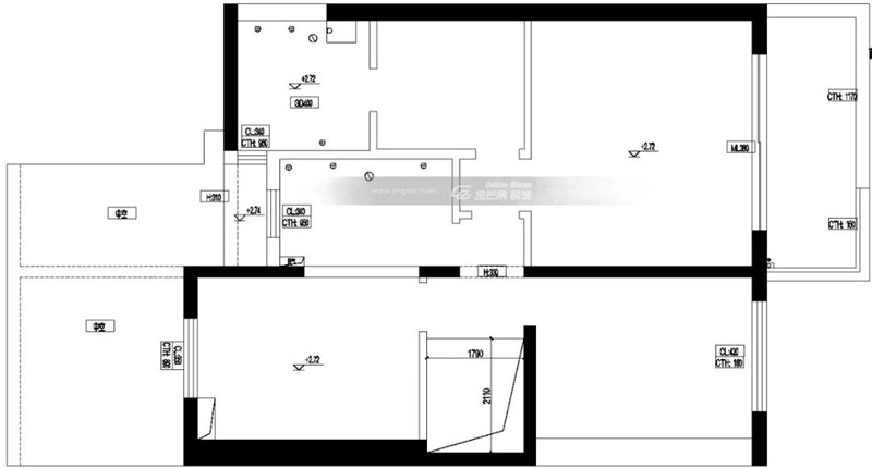
▲二樓改造前

▲二樓改造后
二樓空間比較零碎,將主臥相鄰的房間打通,設置成一個和主臥相連的大衣帽間,擴大可使用區域,同時也增加大量收納空間。
▲ 設計亮點
— The design highlights
1、 色調設計
冷色調下的溫暖家,同樣美的讓人心醉

全屋選用大面積灰色調和卡其色,內斂、平靜,氣質卓然,在歲月的沉淀下愈發精致,不是稍縱即逝的時尚快節奏,而是在時間的淘洗下變得經典和永恒。
2、 儲物設計
美觀性與實用性兼顧

客廳、廚房、書房、衣帽間等,設計師都設計了大量的儲物空間,把生活的細碎都收納起來,簡潔明了的家會讓人心情豁然開朗,也有更多的活動空間給自己和家人享受生活。
3、 照明設計
造型感與溫馨感兼具


明亮的空間能帶給人好心情,燈帶、吊燈、射燈、臺燈等燈光設計,不僅滿足業主想要空間明亮的需求,也給生活增添了一些活潑、絢麗的滋味。
▲ 入戶
— House entry

入戶轉角處摒棄常規的平轉角,設置了動線轉角,在進出門之間形成空間對話。
中心吧臺區域,灰色調和轉角處形成對比,一灰一白,一繁一簡,輕松打造高級感。柜體既做到了增加收納空間,又做到了功能區隔。


柜體的背面,設計了寬大的落地鏡,廚房水吧區過道狹窄,落地鏡可起到視覺延伸的作用,增加通透的感覺。

▲ 餐廳
— Dining room

餐廳和客廳相鄰,增加房間煙火氣。屋主一家人在飯桌上吃飯,孩子在客廳玩耍,非常愜意的畫面。


大理石餐桌臺面,便于打理,寬闊的空間可容納多人同時用餐。餐邊柜,就餐時隨手可觸到需要的東西,生活方便了,幸福感自然UPUP……
▲ 客廳
— Living room


客廳選用木地板材質,木材的紋理很有質感,不會顯得過于沉悶。
沙發的選用延續整體的優雅色調,金屬質感主茶幾和邊幾,造型簡約,搭配簡約風的燈飾,蘊含低調的奢華。

電視背景墻壁燈區域的設計營造時尚感,豐富空間層次。
▲ 陽臺
— Balcony

陽臺區域設置茶桌,一縷茶香、三兩好友,釋放身心的好場所。
▲ 廚房
— Kitchen

廚房玻璃門,一推一拉,封閉和開放式廚房自由切換。
▲ 書房
— Study

書房是意在營造一個慵懶、愜意,沉靜的利于思考的空間。
▲ 女兒房
— Daughter room


甜美、清新、可愛……將這些形容女孩子的美好詞匯融入到裝修設計當中,滿足女孩子粉粉嫩嫩的少女心,用清新的顏色、溫柔的搭配守護住孩子內心純真的小世界。
▲ 主臥室
— master bedroom



主臥的設計凸顯生活的質感,體現業主的品味和生活積淀。優雅的紫色和沉穩內斂的灰白色調相搭配,呈現的是精致、舒適的氣質臥室空間。雖然簡約,但是搭配設計后卻毫不簡單。


