北歐風裝修|銀海泊岸:冬日暖陽般的小確幸
冬日的午后,溫柔的陽光
微涼的風輕掀起了白紗
陽臺上吊椅輕輕晃動
一杯熱茶,一本書
親愛的,愿你的歲月安穩靜好
寧靜安穩的時光就像一首淺吟低唱的詩,而簡單生活中的小美好就如輕輕流淌的溪流。如此美好的時光,自然需要一個契合的家來裝載。今天要給大家分享的就是一套溫柔清新的北歐風設計,位于同樣充滿詩意的銀海泊岸。
裝修設計:云南金芒果裝飾
所在小區:銀海泊岸
建筑面積:145㎡
設計師:張正川

銀海泊岸效果圖
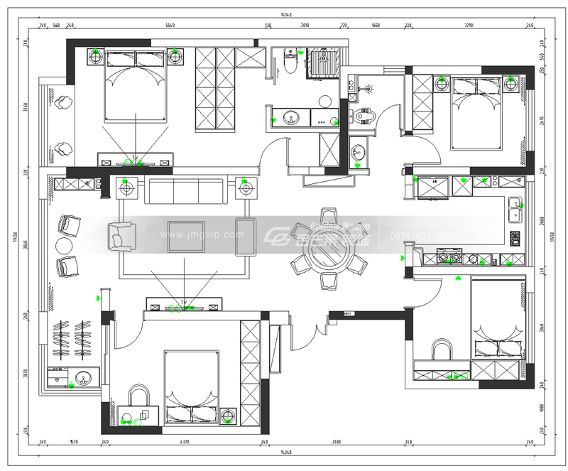
戶型分析

原始平面圖
首先是原始戶型圖。
優點:戶型整體比較方正,全明戶型,通風采光都很好。
缺點:廚房空間比較小,無法滿足需求;主臥空間不大不小,如果要內置衣帽間會比較局促。
針對這樣的情況,設計師進行了怎樣的設計改造呢?就讓我們一起來看看吧!

改造后平面圖
廚房部分連通生活陽臺,將廚房空間擴大的同時也加強了采光。生活陽臺則放到了觀景陽臺的一側,既滿足使用需求,也不影響日常休閑。主臥部分將主衛縮小,留出空間放置一組雙面柜充當衣帽間。
接下來讓我們來看看裝修后的效果圖。
客廳

客廳效果圖-1
客廳與陽臺連通,十分通透明亮。整體空間以白色為底,增強明亮開闊感。電視背景墻采用莫蘭迪綠色刷墻,搭配圓形吊燈,營造清新自然的氛圍,淺粉色椅子和地毯給空間增添了一絲柔軟。

客廳效果圖-2
白灰拼接背景墻搭配簡約的石膏板走邊,簡約大氣而不單調。白色沙發上是色彩豐富的抱枕,冷靜中帶著些許俏皮。沙發兩側的矮幾上設計了兩盞小臺燈,暖黃色的燈光帶來一絲溫馨。

客廳效果圖-3
客廳整體開闊通透、舒適清新,簡約冷靜而不失溫暖,這也正是北歐風裝修帶給人最直觀的感受。
餐廳

餐廳效果圖
餐廳整體延續客廳的風格,與客廳相協調。白色為底使空間更加開闊,淺灰色地磚和灰色半墻營造層次感,用綠色使整體氛圍更加生動,再以帶原木色的矮柜、餐桌椅點綴,整個餐廳清新自然,充滿文藝氣息。
主臥

主臥效果圖
主臥在白色的大基調上,選用淺木色地板、淺灰花紋地毯和棕色床尾凳,增加空間感,提升質感。床頭吊頂內嵌燈槽設計,減少直接照明,更加舒適愜意。鋪有軟墊的飄窗增加趣味性,在雨天倚靠在窗前,小酌一口,聽著窗外淅淅瀝瀝的雨聲,感受微醺愜意的時光。
次臥

次臥效果圖
簡單大方的次臥除了滿足基本的休息睡眠外,還設計了小書桌方便辦公學習,良好的通風采光也增強了房間的舒適性。
以上就是今天要給大家分享的內容,不知道各位裝友有沒有心動呢?想要了解更多內容可以聯系小編!
聯系電話:金芒果小梁 18875140869(微信同號)


